
Elst Noord Spoorkruisingen start deze week met de definitieve inrichting van de openbare ruimte tussen de Rijksweg-Noord, Sneeuwjacht en de Ochtendgloren. Om overal goed bij te kunnen, gaan ze eerst de houten schutting verwijderen.
Aanstaande woensdag, 3 november wordt de houten schutting verwijderd. In verband met de veiligheid en omdat het nog een werkterrein is, zullen ze het terrein op sommige plekken nog afsluiten met lage hekken.
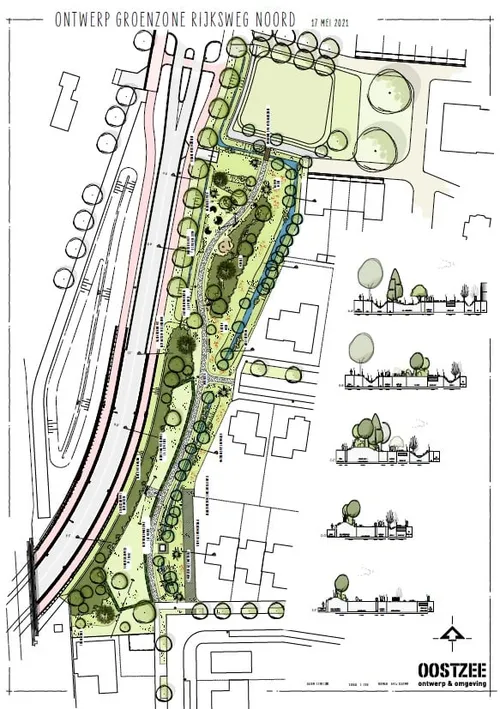
Het terrein wordt helemaal leeggehaald en vlak gemaakt. Daarna wordt de nieuwe sloot tussen de Rijksweg-Noord en het terrein uitgegraven, waarna het terrein verder kan worden ingericht. De sloot tussen de Sneeuwjacht en de Ochtendgloren zal worden uitgebreid richting Ochtendgloren. Later wordt het voetpad tussen de Sneeuwjacht en de Ochtendgloren verwijderd. De beplanting kan pas in het voorjaar aangebracht worden.
Op de afbeelding staat het definitieve ontwerp zoals het terrein gaat worden. Het is de bedoeling dat het terrein voor kerst weer wordt opengesteld.
Bron: Elst Noord Spoorkruisingen
Adverteren op Overbetuwe.nieuws.nl ? Onze bezoekersaantallen blijven stijgen, wat onder andere goed is voor de zichtbaarheid van onze adverteerders. Wil jij je naamsbekendheid vergroten? Neem dan voor adverteren contact op met Leo Christiaens via de telefoon: 06-11087527 of via de mail: [email protected] . De redactie is te bereiken via [email protected] .